メインステージ三ノ輪EAST【満室】 *** | 1R | ***
本情報は過去に掲載された物件の参考情報です。 最新の物件情報など詳細につきましてはお気軽にお問合せください。
| 賃料 | *** | 管理費・共益費 | *** |
|---|---|---|---|
| 敷金/礼金 | *** / *** | 専有面積 | 25.27m² |
| 間取り | 1R | 階建 | ***/12階建 |
メインステージ三ノ輪EAST【満室】の詳細
| 賃料 | *** | 管理費・共益費 | *** |
|---|---|---|---|
| 敷金/保証金 | *** / *** | 礼金/償却・敷引 | *** / *** |
| 更新料 | *** | フリーレント | *** |
| その他費用 | *** | ||
| 所在地 | 東京都台東区三ノ輪2丁目 | ||
| 交通 |
東京地下鉄日比谷線「三ノ輪」 徒歩4分 常磐線「南千住」 徒歩8分 都営荒川線「三ノ輪橋」 徒歩8分 |
||
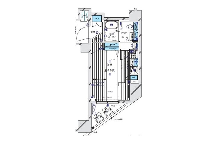
| 間取り | 1R | 間取り内訳 |
洋室 9.8 畳 |
| 専有面積 | 25.27m² | バルコニー面積 | |
| 築年月(築年数) | 2018年12月(築7年) | 方位 | 北 |
| 建物構造 | RC(鉄筋コンクリート) | 所在階/階建 | ***/12階建 |
| 総戸数 | 50戸 | 駐車場 | 無 |
| 保険料 | *** | 契約期間 | *** |
| 引渡 | 2024年11月 | ||
| 現況(予定年月) | 居住中 | ||
| 管理 | 管理人/巡回、 | ||
| 設備・条件 | BSアンテナ、CSアンテナ、CATV、光ファイバー、オートロック、防犯カメラ、宅配ボックス、バイク置き場、駐輪場、エレベータ、デザイナーズ、2階以上、システムキッチン、バス・トイレ別、温水洗浄便座、浴室乾燥機、室内洗濯機置き場、フローリング、エアコン、バルコニー、分譲賃貸、礼金なし、敷金なし、ペット相談 | ||
| 備考 | 保証人代行:必須/管理会社指定:賃料+管理費の50% | ||
| 周辺施設 |
三ノ輪マル薬局(距離:205m) ファミリーマート 三ノ輪店(距離:284m) セブンイレブン 台東日本堤店(距離:322m) アコレ 三ノ輪駅北店(距離:376m) Y’s mart(ワイズマート) 三ノ輪店(距離:536m) どらっぐぱぱす 三ノ輪店(距離:487m) |
||
| 物件番号 | 41752 | 取引態様 | 仲介 |
| 情報更新日 | *** | ||
| 次回更新予定日 | 情報更新日より15日以内 | ||




















COMMENTS FROM STAFFメインステージ三ノ輪EAST【満室】の
担当者コメント
東京の1人暮らしはアセットナビへ!自社ブランドマンションをはじめ、賃貸物件を数多くご紹介可能です。こちらの物件は、分譲賃貸マンションで設備が充実しております。オートロックシステムでセキュリティもバッチリです。