NEXAS EBARA【満室】 *** | 1K | ***
本情報は過去に掲載された物件の参考情報です。 最新の物件情報など詳細につきましてはお気軽にお問合せください。
| 賃料 | *** | 管理費・共益費 | *** |
|---|---|---|---|
| 敷金/礼金 | *** / *** | 専有面積 | 25.44m² |
| 間取り | 1K | 階建 | ***/3階建(B1階) |
NEXAS EBARA【満室】の詳細
| 賃料 | *** | 管理費・共益費 | *** |
|---|---|---|---|
| 敷金/保証金 | *** / *** | 礼金/償却・敷引 | *** / *** |
| 更新料 | *** | フリーレント | *** |
| その他費用 | *** | ||
| 所在地 | 東京都品川区中延2丁目 | ||
| 交通 |
東急池上線「荏原中延」 徒歩2分 都営浅草線「中延」 徒歩10分 東急大井町線「荏原町」 徒歩11分 |
||
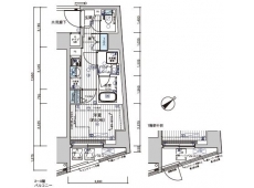
| 間取り | 1K | 間取り内訳 |
洋室 8.5 畳 1 階 |
| 専有面積 | 25.44m² | バルコニー面積 | |
| 築年月(築年数) | 2025年02月(新築) | 方位 | 南 |
| 建物構造 | RC(鉄筋コンクリート) | 所在階/階建 | ***/3階建(B1階) |
| 総戸数 | 駐車場 | 無 | |
| 保険料 | *** | 契約期間 | *** |
| 引渡 | 2025年03月 | ||
| 現況(予定年月) | 空室 | ||
| 管理 | |||
| 設備・条件 | オートロック、TVドアホン、防犯カメラ、ディンプルキー、ダブルロックキー、宅配ボックス、エレベータ、2階以上、システムキッチン、バス・トイレ別、温水洗浄便座、浴室乾燥機、室内洗濯機置き場、洗濯機置き場有、フローリング、24時間換気システム、冷房、エアコン、礼金なし、敷金なし、ペット不可、ルームシェア相談 | ||
| 備考 | |||
| 周辺施設 |
荏原中延 東急ストア(距離:148m) ファミリーマート 中延二丁目店(距離:281m) トモズ 中延店(距離:287m) まいばすけっと 西中延3丁目店(距離:414m) ファミリーマート 品川中延四丁目店(距離:459m) |
||
| 物件番号 | 58660 | 取引態様 | 仲介 |
| 情報更新日 | *** | ||
| 次回更新予定日 | 情報更新日より15日以内 | ||



















COMMENTS FROM STAFFNEXAS EBARA【満室】の
担当者コメント
東京の1人暮らしはアセットナビへ!自社ブランドマンションをはじめ、賃貸物件を数多くご紹介可能です。