メインステージ大森【満室】 *** | 2K | ***
本情報は過去に掲載された物件の参考情報です。 最新の物件情報など詳細につきましてはお気軽にお問合せください。
| 賃料 | *** | 管理費・共益費 | *** |
|---|---|---|---|
| 敷金/礼金 | *** / *** | 専有面積 | 25.35m² |
| 間取り | 2K | 階建 | ***/4階建 |
メインステージ大森【満室】の詳細
| 賃料 | *** | 管理費・共益費 | *** |
|---|---|---|---|
| 敷金/保証金 | *** / *** | 礼金/償却・敷引 | *** / *** |
| 更新料 | *** | フリーレント | *** |
| その他費用 | *** | ||
| 所在地 | 東京都品川区大井7丁目 | ||
| 交通 |
京浜東北・根岸線「大森(東京)」 徒歩10分 湘南新宿ライン宇須「西大井」 徒歩15分 京浜急行電鉄本線「大森海岸」 徒歩21分 |
||
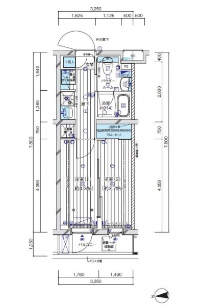
| 間取り | 2K | 間取り内訳 |
洋室 4.3 畳 洋室 3.7 畳 |
| 専有面積 | 25.35m² | バルコニー面積 | |
| 築年月(築年数) | 2025年01月(未入居) | 方位 | 西 |
| 建物構造 | RC(鉄筋コンクリート) | 所在階/階建 | ***/4階建 |
| 総戸数 | 駐車場 | ||
| 保険料 | *** | 契約期間 | *** |
| 引渡 | 即時 | ||
| 現況(予定年月) | 空室 | ||
| 管理 | |||
| 設備・条件 | 光ファイバー、オートロック、TVドアホン、防犯カメラ、ディンプルキー、ダブルロックキー、宅配ボックス、エレベータ、システムキッチン、バス・トイレ別、温水洗浄便座、浴室乾燥機、室内洗濯機置き場、フローリング、24時間換気システム、エアコン、バルコニー、分譲賃貸、礼金なし、敷金なし、ペット相談 | ||
| 備考 | 保証人代行:必須/賃料総額の50%~ | ||
| 周辺施設 |
ファミリーマート 大森山王一丁目店(距離:571m) トップパルケ 鹿島店(距離:671m) オオゼキ 大森駅前店(距離:877m) まいばすけっと 大森駅北口店(距離:943m) |
||
| 物件番号 | 58150 | 取引態様 | 仲介 |
| 情報更新日 | *** | ||
| 次回更新予定日 | 情報更新日より15日以内 | ||



















COMMENTS FROM STAFFメインステージ大森【満室】の
担当者コメント
東京の1人暮らしはアセットナビへ!自社ブランドマンションをはじめ、賃貸物件を数多くご紹介可能です。こちらの物件は、新築分譲賃貸マンションで設備が充実しております。オートロックシステムでセキュリティもバッチリです。