クレイシアIDZ上野【満室】 *** | 2K | ***
本情報は過去に掲載された物件の参考情報です。 最新の物件情報など詳細につきましてはお気軽にお問合せください。
| 賃料 | *** | 管理費・共益費 | *** |
|---|---|---|---|
| 敷金/礼金 | *** / *** | 専有面積 | 25.17m² |
| 間取り | 2K | 階建 | ***/15階建 |
クレイシアIDZ上野【満室】の詳細
| 賃料 | *** | 管理費・共益費 | *** |
|---|---|---|---|
| 敷金/保証金 | *** / *** | 礼金/償却・敷引 | *** / *** |
| 更新料 | *** | フリーレント | *** |
| その他費用 | *** | ||
| 所在地 | 東京都台東区北上野2丁目 | ||
| 交通 |
東京地下鉄日比谷線「入谷(東京)」 徒歩4分 山手線「上野」 徒歩9分 東京地下鉄銀座線「稲荷町(東京)」 徒歩9分 |
||
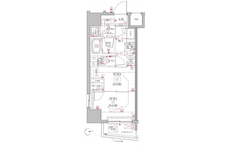
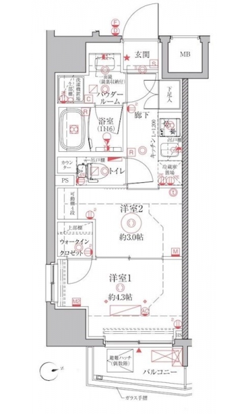
| 間取り | 2K | 間取り内訳 |
洋室 3 畳 洋室 4.3 畳 |
| 専有面積 | 25.17m² | バルコニー面積 | |
| 築年月(築年数) | 2024年03月(築1年) | 方位 | 東 |
| 建物構造 | RC(鉄筋コンクリート) | 所在階/階建 | ***/15階建 |
| 総戸数 | 30戸 | 駐車場 | |
| 保険料 | *** | 契約期間 | *** |
| 引渡 | 2025年05月 | ||
| 現況(予定年月) | 居住中 | ||
| 管理 | |||
| 設備・条件 | 光ファイバー、オートロック、防犯カメラ、宅配ボックス、エレベータ、デザイナーズ、2階以上、角部屋、システムキッチン、バス・トイレ別、温水洗浄便座、浴室乾燥機、室内洗濯機置き場、洗濯機置き場有、フローリング、24時間換気システム、エアコン、ウォークインクローゼット、バルコニー、分譲賃貸 | ||
| 備考 | 保証人代行:必須/新日本信用保証、他、総賃料の40%~80%、年10,000円 | ||
| 周辺施設 |
セブンイレブン 台東北上野2丁目店(距離:78m) ローソンストア100 LS北上野二丁目店(距離:156m) まいばすけっと 北上野2丁目店(距離:218m) |
||
| 物件番号 | 59264 | 取引態様 | 仲介 |
| 情報更新日 | *** | ||
| 次回更新予定日 | 情報更新日より15日以内 | ||




















COMMENTS FROM STAFFクレイシアIDZ上野【満室】の
担当者コメント
東京の1人暮らしはアセットナビへ!自社ブランドマンションをはじめ、賃貸物件を数多くご紹介可能です。こちらの物件は、分譲賃貸マンションで設備が充実しております。オートロックシステムでセキュリティもバッチリです。快適な独立洗面台つき。いつでも荷物が受け取れる宅配ボックス。お手入れラクラク温水洗浄便座。雨の日でも洗濯物が干せる浴室乾燥機。