メインステージ久我山【満室】 *** | 1K | ***
本情報は過去に掲載された物件の参考情報です。 最新の物件情報など詳細につきましてはお気軽にお問合せください。
| 賃料 | *** | 管理費・共益費 | *** |
|---|---|---|---|
| 敷金/礼金 | *** / *** | 専有面積 | 25.77m² |
| 間取り | 1K | 階建 | ***/5階建 |
メインステージ久我山【満室】の詳細
| 賃料 | *** | 管理費・共益費 | *** |
|---|---|---|---|
| 敷金/保証金 | *** / *** | 礼金/償却・敷引 | *** / *** |
| 更新料 | *** | フリーレント | *** |
| その他費用 | *** | ||
| 所在地 | 東京都杉並区久我山2丁目 | ||
| 交通 |
京王電鉄井の頭線「久我山」 徒歩4分 京王電鉄井の頭線「富士見ヶ丘」 徒歩11分 京王電鉄井の頭線「高井戸」 徒歩19分 |
||
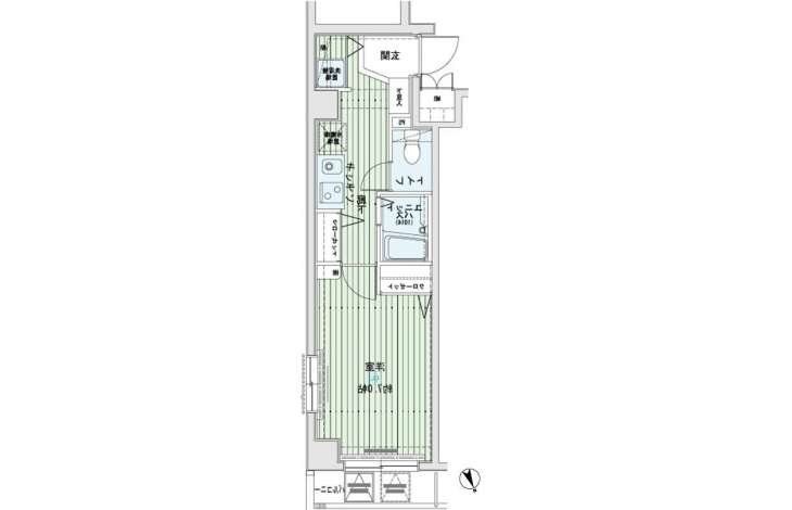
| 間取り | 1K | 間取り内訳 |
洋室 7 畳 |
| 専有面積 | 25.77m² | バルコニー面積 | |
| 築年月(築年数) | 2004年09月(築21年) | 方位 | 北東 |
| 建物構造 | RC(鉄筋コンクリート) | 所在階/階建 | ***/5階建 |
| 総戸数 | 駐車場 | ||
| 保険料 | *** | 契約期間 | *** |
| 引渡 | 即時 | ||
| 現況(予定年月) | 空室 | ||
| 管理 | |||
| 設備・条件 | BSアンテナ、CSアンテナ、CATV、オートロック、TVドアホン、防犯カメラ、ディンプルキー、ダブルロックキー、宅配ボックス、駐輪場、エレベータ、2階以上、角部屋、システムキッチン、バス・トイレ別、温水洗浄便座、浴室乾燥機、室内洗濯機置き場、洗濯機置き場有、フローリング、エアコン、バルコニー、分譲賃貸、礼金なし、敷金なし、ペット不可 | ||
| 備考 | 保証人代行:必須/家賃総額の50%~ | ||
| 周辺施設 |
ピーコックストア 久我山店(距離:513m) サミットストア 久我山店(距離:313m) セブンイレブン 久我山2丁目店(距離:155m) ローソン 久我山駅南店(距離:209m) ドラッグストアスマイル久我山店(距離:3m) |
||
| 物件番号 | 42693 | 取引態様 | 仲介 |
| 情報更新日 | *** | ||
| 次回更新予定日 | 情報更新日より15日以内 | ||




















COMMENTS FROM STAFFメインステージ久我山【満室】の
担当者コメント
東京の1人暮らしはアセットナビへ!自社ブランドマンションをはじめ、賃貸物件を数多くご紹介可能です。3,000円キャッシュバックキャンペーン実施中。オンライン接客のお客様にAmazonギフト券3,000円分をプレゼント。詳しくはスタッフまでお問い合わせください。