メインステージ吉祥寺【満室】 *** | 1K | ***
本情報は過去に掲載された物件の参考情報です。 最新の物件情報など詳細につきましてはお気軽にお問合せください。
| 賃料 | *** | 管理費・共益費 | *** |
|---|---|---|---|
| 敷金/礼金 | *** / *** | 専有面積 | 28.76m² |
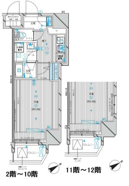
| 間取り | 1K | 階建 | ***/15階建 |
メインステージ吉祥寺【満室】の詳細
| 賃料 | *** | 管理費・共益費 | *** |
|---|---|---|---|
| 敷金/保証金 | *** / *** | 礼金/償却・敷引 | *** / *** |
| 更新料 | *** | フリーレント | *** |
| その他費用 | *** | ||
| 所在地 | 東京都武蔵野市吉祥寺本町1丁目 | ||
| 交通 |
中央本線「吉祥寺」 徒歩5分 京王電鉄井の頭線「吉祥寺」 徒歩6分 京王電鉄井の頭線「井の頭公園」 徒歩16分 |
||
| 間取り | 1K | 間取り内訳 |
洋室 8.9 畳 |
| 専有面積 | 28.76m² | バルコニー面積 | |
| 築年月(築年数) | 2010年02月(築15年) | 方位 | 南東 |
| 建物構造 | SRC(鉄骨鉄筋コンクリート) | 所在階/階建 | ***/15階建 |
| 総戸数 | 駐車場 | ||
| 保険料 | *** | 契約期間 | *** |
| 引渡 | 即時 | ||
| 現況(予定年月) | 空室 | ||
| 管理 | |||
| 設備・条件 | BSアンテナ、CSアンテナ、CATV、オートロック、TVドアホン、ディンプルキー、ダブルロックキー、宅配ボックス、駐輪場、エレベータ、2階以上、システムキッチン、バス・トイレ別、温水洗浄便座、浴室乾燥機、室内洗濯機置き場、洗濯機置き場有、フローリング、24時間換気システム、エアコン、バルコニー、敷金なし、ペット相談 | ||
| 備考 | 保証人代行:必須/総賃料の40%~ | ||
| 周辺施設 |
ファミリーマート 吉祥寺東町一丁目店(距離:98m) セブンイレブン 吉祥寺東町1丁目店(距離:144m) まいばすけっと 吉祥寺本町店(距離:58m) 西友 吉祥寺店(距離:157m) ココカラファイン 吉祥寺サンロード店(距離:293m) |
||
| 物件番号 | 39937 | 取引態様 | 仲介 |
| 情報更新日 | *** | ||
| 次回更新予定日 | 情報更新日より15日以内 | ||


















COMMENTS FROM STAFFメインステージ吉祥寺【満室】の
担当者コメント
東京の1人暮らしはアセットナビへ!自社ブランドマンションをはじめ、賃貸物件を数多くご紹介可能です。こちらの物件は、分譲賃貸マンションで設備が充実しております。オートロックシステムでセキュリティもバッチリです。