メインステージ信濃町【満室】 *** | 1K | ***
本情報は過去に掲載された物件の参考情報です。 最新の物件情報など詳細につきましてはお気軽にお問合せください。
| 賃料 | *** | 管理費・共益費 | *** |
|---|---|---|---|
| 敷金/礼金 | *** / *** | 専有面積 | 30.27m² |
| 間取り | 1K | 階建 | ***/13階建 |
メインステージ信濃町【満室】の詳細
| 賃料 | *** | 管理費・共益費 | *** |
|---|---|---|---|
| 敷金/保証金 | *** / *** | 礼金/償却・敷引 | *** / *** |
| 更新料 | *** | フリーレント | *** |
| その他費用 | *** | ||
| 所在地 | 東京都新宿区信濃町 | ||
| 交通 |
東京地下鉄丸ノ内線「四谷三丁目」 徒歩5分 総武・中央緩行線「信濃町」 徒歩6分 都営大江戸線「国立競技場」 徒歩13分 |
||
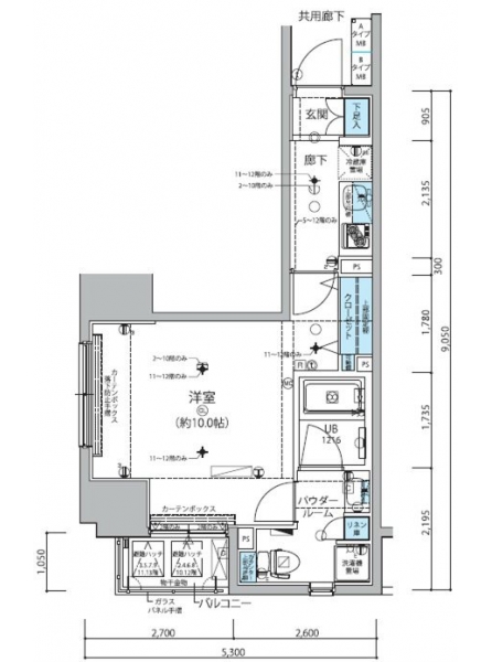
| 間取り | 1K | 間取り内訳 |
洋室 10 畳 K 2 畳 |
| 専有面積 | 30.27m² | バルコニー面積 | |
| 築年月(築年数) | 2014年01月(築12年) | 方位 | 東 |
| 建物構造 | RC(鉄筋コンクリート) | 所在階/階建 | ***/13階建 |
| 総戸数 | 53戸 | 駐車場 | 無 |
| 保険料 | *** | 契約期間 | *** |
| 引渡 | 2022年01月 | ||
| 現況(予定年月) | 居住中 | ||
| 管理 | 管理人/巡回、 | ||
| 設備・条件 | BSアンテナ、CSアンテナ、光ファイバー、オートロック、TVドアホン、防犯カメラ、宅配ボックス、バイク置き場、駐輪場、エレベータ、2階以上、角部屋、システムキッチン、バス・トイレ別、温水洗浄便座、浴室乾燥機、室内洗濯機置き場、フローリング、エアコン、バルコニー、分譲賃貸 | ||
| 備考 | 保証人代行:必須/管理会社指定:賃料+管理費の50%~ | ||
| 周辺施設 |
MARUSHO総本店(距離:489m) ファミリーマート四谷四丁目店(距離:709m) MARUSHO総本店(距離:489m) ミニストップ新宿左門町店(距離:187m) MARUSHO若葉店(距離:610m) まいばすけっと四谷2丁目店(距離:811m) |
||
| 物件番号 | 20572 | 取引態様 | 代理 |
| 情報更新日 | *** | ||
| 次回更新予定日 | 情報更新日より15日以内 | ||


















COMMENTS FROM STAFFメインステージ信濃町【満室】の
担当者コメント
東京の1人暮らしはアセットナビへ!自社ブランドマンションをはじめ、賃貸物件を数多くご紹介可能です。こちらの物件は、分譲賃貸マンションで設備が充実しております。オートロックシステムでセキュリティもバッチリです。