クレヴィスタ武蔵小山【満室】 *** | 1K | ***
本情報は過去に掲載された物件の参考情報です。 最新の物件情報など詳細につきましてはお気軽にお問合せください。
| 賃料 | *** | 管理費・共益費 | *** |
|---|---|---|---|
| 敷金/礼金 | *** / *** | 専有面積 | 20.29m² |
| 間取り | 1K | 階建 | ***/10階建 |
クレヴィスタ武蔵小山【満室】の詳細
| 賃料 | *** | 管理費・共益費 | *** |
|---|---|---|---|
| 敷金/保証金 | *** / *** | 礼金/償却・敷引 | *** / *** |
| 更新料 | *** | フリーレント | *** |
| その他費用 | *** | ||
| 所在地 | 東京都品川区荏原6丁目 | ||
| 交通 |
東急目黒線「武蔵小山」 徒歩12分 東急池上線「荏原中延」 徒歩9分 東急目黒線「西小山」 徒歩12分 |
||
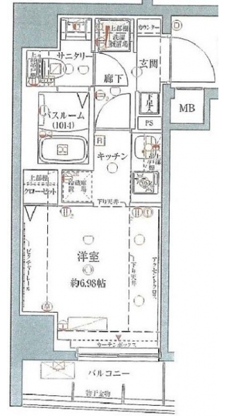
| 間取り | 1K | 間取り内訳 |
洋室 7 畳 |
| 専有面積 | 20.29m² | バルコニー面積 | |
| 築年月(築年数) | 2015年05月(築10年) | 方位 | 南東 |
| 建物構造 | RC(鉄筋コンクリート) | 所在階/階建 | ***/10階建 |
| 総戸数 | 41戸 | 駐車場 | |
| 保険料 | *** | 契約期間 | *** |
| 引渡 | 相談 | ||
| 現況(予定年月) | 空室 | ||
| 管理 | 管理人/巡回、 | ||
| 設備・条件 | BSアンテナ、CSアンテナ、光ファイバー、オートロック、TVドアホン、防犯カメラ、ダブルロックキー、宅配ボックス、エレベータ、デザイナーズ、2階以上、システムキッチン、バス・トイレ別、温水洗浄便座、浴室乾燥機、室内洗濯機置き場、洗濯機置き場有、フローリング、24時間換気システム、エアコン、バルコニー、分譲賃貸、敷金なし、ペット相談 | ||
| 備考 | 保証人代行:必須/賃料総額の40%~ | ||
| 周辺施設 |
サミットストア 荏原4丁目店(距離:159m) セブンイレブン 品川西中延1丁目店(距離:247m) つばさ薬局(距離:223m) |
||
| 物件番号 | 60823 | 取引態様 | 仲介 |
| 情報更新日 | *** | ||
| 次回更新予定日 | 情報更新日より15日以内 | ||



















COMMENTS FROM STAFFクレヴィスタ武蔵小山【満室】の
担当者コメント
東京の1人暮らしはアセットナビへ!自社ブランドマンションをはじめ、賃貸物件を数多くご紹介可能です。こちらの物件は、分譲賃貸マンションで設備が充実しております。オートロックシステムでセキュリティもバッチリです。快適な独立洗面台つき。いつでも荷物が受け取れる宅配ボックス。お手入れラクラク温水洗浄便座。雨の日でも洗濯物が干せる浴室乾燥機。かわいいペットと一緒に暮らせるマンションです。※ペット飼育相談可、敷金2ヶ月追加(償却)。