クレイシアIDZ中野鷺宮【満室】 *** | 2K | ***
本情報は過去に掲載された物件の参考情報です。 最新の物件情報など詳細につきましてはお気軽にお問合せください。
| 賃料 | *** | 管理費・共益費 | *** |
|---|---|---|---|
| 敷金/礼金 | *** / *** | 専有面積 | 29.24m² |
| 間取り | 2K | 階建 | ***/4階建 |
クレイシアIDZ中野鷺宮【満室】の詳細
| 賃料 | *** | 管理費・共益費 | *** |
|---|---|---|---|
| 敷金/保証金 | *** / *** | 礼金/償却・敷引 | *** / *** |
| 更新料 | *** | フリーレント | *** |
| その他費用 | *** | ||
| 所在地 | 東京都中野区鷺宮4丁目 | ||
| 交通 |
西武鉄道新宿線「鷺ノ宮」 徒歩9分 西武鉄道新宿線「下井草」 徒歩11分 西武池袋・豊島線「富士見台」 徒歩20分 |
||
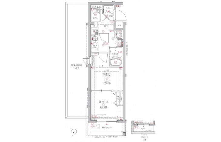
| 間取り | 2K | 間取り内訳 |
洋室 5.1 畳 洋室 4.3 畳 K 2 畳 |
| 専有面積 | 29.24m² | バルコニー面積 | |
| 築年月(築年数) | 2024年04月(未入居) | 方位 | |
| 建物構造 | RC(鉄筋コンクリート) | 所在階/階建 | ***/4階建 |
| 総戸数 | 駐車場 | ||
| 保険料 | *** | 契約期間 | *** |
| 引渡 | 即時 | ||
| 現況(予定年月) | 空室 | ||
| 管理 | |||
| 設備・条件 | BSアンテナ、CSアンテナ、オートロック、TVドアホン、防犯カメラ、ディンプルキー、ダブルロックキー、宅配ボックス、駐輪場、エレベータ、2階以上、システムキッチン、バス・トイレ別、温水洗浄便座、浴室乾燥機、室内洗濯機置き場、洗濯機置き場有、フローリング、24時間換気システム、エアコン、バルコニー、分譲賃貸、敷金なし | ||
| 備考 | 保証人代行:必須/賃料総額の40%~ | ||
| 周辺施設 |
OK(オーケー) 鷺宮店(距離:410m) ファミリーマート 上鷺宮二丁目店(距離:502m) クリエイトSD(エス・ディー) 中野上鷺宮店(距離:614m) UENOスーパー金次郎(距離:687m) セブンイレブン 中野鷺宮店(距離:624m) |
||
| 物件番号 | 49296 | 取引態様 | 仲介 |
| 情報更新日 | *** | ||
| 次回更新予定日 | 情報更新日より15日以内 | ||



















COMMENTS FROM STAFFクレイシアIDZ中野鷺宮【満室】の
担当者コメント
東京の1人暮らしはアセットナビへ!自社ブランドマンションをはじめ、賃貸物件を数多くご紹介可能です。こちらの物件は、分譲賃貸マンションで設備が充実しております。オートロックシステムでセキュリティもバッチリです。