メインステージ都立家政【満室】 *** | 1K | ***
本情報は過去に掲載された物件の参考情報です。 最新の物件情報など詳細につきましてはお気軽にお問合せください。
| 賃料 | *** | 管理費・共益費 | *** |
|---|---|---|---|
| 敷金/礼金 | *** / *** | 専有面積 | 25.51m² |
| 間取り | 1K | 階建 | ***/4階建 |
メインステージ都立家政【満室】の詳細
| 賃料 | *** | 管理費・共益費 | *** |
|---|---|---|---|
| 敷金/保証金 | *** / *** | 礼金/償却・敷引 | *** / *** |
| 更新料 | *** | フリーレント | *** |
| その他費用 | *** | ||
| 所在地 | 東京都練馬区中村南2丁目 | ||
| 交通 |
西武鉄道新宿線「都立家政」 徒歩6分 西武鉄道新宿線「鷺ノ宮」 徒歩9分 西武池袋・豊島線「中村橋」 徒歩20分 |
||
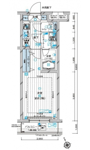
| 間取り | 1K | 間取り内訳 |
K 2 畳 洋室 8.2 畳 |
| 専有面積 | 25.51m² | バルコニー面積 | |
| 築年月(築年数) | 2014年03月(築11年) | 方位 | 南西 |
| 建物構造 | RC(鉄筋コンクリート) | 所在階/階建 | ***/4階建 |
| 総戸数 | 56戸 | 駐車場 | 無 |
| 保険料 | *** | 契約期間 | *** |
| 引渡 | 2022年09月 | ||
| 現況(予定年月) | 居住中 | ||
| 管理 | 管理人/巡回、管理会社/株式会社青山メインランド | ||
| 設備・条件 | BSアンテナ、CSアンテナ、オートロック、TVドアホン、防犯カメラ、ディンプルキー、ダブルロックキー、宅配ボックス、バイク置き場、駐輪場、エレベータ、閑静な住宅街、角部屋、システムキッチン、バス・トイレ別、温水洗浄便座、浴室乾燥機、室内洗濯機置き場、フローリング、24時間換気システム、エアコン、バルコニー、分譲賃貸、ルームシェア相談 | ||
| 備考 | 保証人代行:必須/総家賃の50%~ | ||
| 周辺施設 |
OK(オーケー) 中杉店(距離:490m) コープ 中野鷺宮店(距離:463m) いなげや ina(イーナ)21 練馬中村南店(距離:541m) サミットストア 鷺宮店(距離:540m) ファミリーマート 都立家政店(距離:144m) セブンイレブン 練馬中村南2丁目店(距離:268m) |
||
| 物件番号 | 29053 | 取引態様 | 仲介 |
| 情報更新日 | *** | ||
| 次回更新予定日 | 情報更新日より15日以内 | ||





















COMMENTS FROM STAFFメインステージ都立家政【満室】の
担当者コメント
東京の1人暮らしはアセットナビへ!自社ブランドマンションをはじめ、賃貸物件を数多くご紹介可能です。こちらの物件は、分譲賃貸マンションで設備が充実しております。オートロックシステムでセキュリティもバッチリです。