クレイシア目黒都立大学【満室】 *** | 1K | ***
本情報は過去に掲載された物件の参考情報です。 最新の物件情報など詳細につきましてはお気軽にお問合せください。
| 賃料 | *** | 管理費・共益費 | *** |
|---|---|---|---|
| 敷金/礼金 | *** / *** | 専有面積 | 25.37m² |
| 間取り | 1K | 階建 | ***/3階建 |
クレイシア目黒都立大学【満室】の詳細
| 賃料 | *** | 管理費・共益費 | *** |
|---|---|---|---|
| 敷金/保証金 | *** / *** | 礼金/償却・敷引 | *** / *** |
| 更新料 | *** | フリーレント | *** |
| その他費用 | *** | ||
| 所在地 | 東京都目黒区平町2丁目 | ||
| 交通 |
東急東横線「都立大学」 徒歩8分 東急大井町線「緑が丘(東京)」 徒歩12分 東急目黒線「大岡山」 徒歩13分 |
||
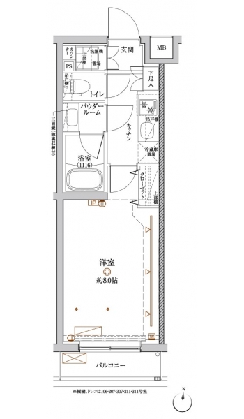
| 間取り | 1K | 間取り内訳 |
洋室 8 畳 K 2 畳 |
| 専有面積 | 25.37m² | バルコニー面積 | |
| 築年月(築年数) | 2018年12月(築7年) | 方位 | 南 |
| 建物構造 | RC(鉄筋コンクリート) | 所在階/階建 | ***/3階建 |
| 総戸数 | 34戸 | 駐車場 | |
| 保険料 | *** | 契約期間 | *** |
| 引渡 | 2025年03月 | ||
| 現況(予定年月) | 居住中 | ||
| 管理 | |||
| 設備・条件 | オートロック、防犯カメラ、ディンプルキー、ダブルロックキー、宅配ボックス、エレベータ、バス・トイレ別、温水洗浄便座、浴室乾燥機、追い焚き、室内洗濯機置き場、洗濯機置き場有、エアコン、バルコニー | ||
| 備考 | 保証人代行:必須/賃料総額の40%~ | ||
| 周辺施設 |
ローソン 目黒平町二丁目店(距離:268m) ツルハドラッグ 目黒中根店(距離:351m) すみれ薬局(距離:400m) セブンイレブン 都立大学駅南店(距離:471m) まいばすけっと 大岡山1丁目店(距離:627m) |
||
| 物件番号 | 57301 | 取引態様 | 仲介 |
| 情報更新日 | *** | ||
| 次回更新予定日 | 情報更新日より15日以内 | ||
















COMMENTS FROM STAFFクレイシア目黒都立大学【満室】の
担当者コメント
東京の1人暮らしはアセットナビへ!自社ブランドマンションをはじめ、賃貸物件を数多くご紹介可能です。こちらの物件は、分譲賃貸マンションで設備が充実しております。オートロックシステムでセキュリティもバッチリです。