ルーブル練馬高野台【満室】 *** | 1K | ***
本情報は過去に掲載された物件の参考情報です。 最新の物件情報など詳細につきましてはお気軽にお問合せください。
| 賃料 | *** | 管理費・共益費 | *** |
|---|---|---|---|
| 敷金/礼金 | *** / *** | 専有面積 | 20.40m² |
| 間取り | 1K | 階建 | ***/8階建 |
ルーブル練馬高野台【満室】の詳細
| 賃料 | *** | 管理費・共益費 | *** |
|---|---|---|---|
| 敷金/保証金 | *** / *** | 礼金/償却・敷引 | *** / *** |
| 更新料 | *** | フリーレント | *** |
| その他費用 | *** | ||
| 所在地 | 東京都練馬区高野台4丁目 | ||
| 交通 |
西武池袋・豊島線「練馬高野台」 徒歩9分 西武池袋・豊島線「石神井公園」 徒歩17分 西武池袋・豊島線「富士見台」 徒歩26分 |
||
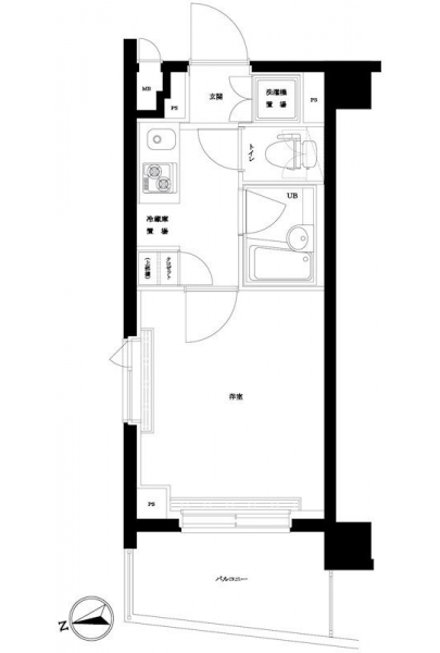
| 間取り | 1K | 間取り内訳 |
K 2.5 畳 洋室 5.5 畳 |
| 専有面積 | 20.40m² | バルコニー面積 | |
| 築年月(築年数) | 2012年03月(築13年) | 方位 | 西 |
| 建物構造 | RC(鉄筋コンクリート) | 所在階/階建 | ***/8階建 |
| 総戸数 | 38戸 | 駐車場 | |
| 保険料 | *** | 契約期間 | *** |
| 引渡 | 2021年08月 | ||
| 現況(予定年月) | 居住中 | ||
| 管理 | |||
| 設備・条件 | BSアンテナ、CSアンテナ、光ファイバー、オートロック、TVドアホン、防犯カメラ、宅配ボックス、エレベータ、デザイナーズ、角部屋、システムキッチン、バス・トイレ別、温水洗浄便座、浴室乾燥機、室内洗濯機置き場、フローリング、エアコン、バルコニー、分譲賃貸 | ||
| 備考 | 保証人代行:必須/総家賃の30%~ | ||
| 周辺施設 | 西友 高野台店(距離:431m) | ||
| 物件番号 | 17595 | 取引態様 | 代理 |
| 情報更新日 | *** | ||
| 次回更新予定日 | 情報更新日より15日以内 | ||



















