ルーブル高島平【満室】 *** | 1K | ***
本情報は過去に掲載された物件の参考情報です。 最新の物件情報など詳細につきましてはお気軽にお問合せください。
| 賃料 | *** | 管理費・共益費 | *** |
|---|---|---|---|
| 敷金/礼金 | *** / *** | 専有面積 | 25.42m² |
| 間取り | 1K | 階建 | ***/8階建 |
ルーブル高島平【満室】の詳細
| 賃料 | *** | 管理費・共益費 | *** |
|---|---|---|---|
| 敷金/保証金 | *** / *** | 礼金/償却・敷引 | *** / *** |
| 更新料 | *** | フリーレント | *** |
| その他費用 | *** | ||
| 所在地 | 東京都板橋区高島平8丁目 | ||
| 交通 |
都営三田線「高島平」 徒歩6分 都営三田線「新高島平」 徒歩13分 都営三田線「西台」 徒歩19分 |
||
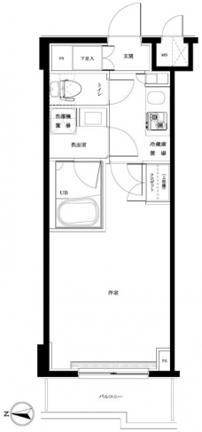
| 間取り | 1K | 間取り内訳 |
K 2 畳 8 階 洋室 7.5 畳 8 階 |
| 専有面積 | 25.42m² | バルコニー面積 | |
| 築年月(築年数) | 2019年02月(築6年) | 方位 | 西 |
| 建物構造 | RC(鉄筋コンクリート) | 所在階/階建 | ***/8階建 |
| 総戸数 | 103戸 | 駐車場 | |
| 保険料 | *** | 契約期間 | *** |
| 引渡 | 2025年02月 | ||
| 現況(予定年月) | 賃貸中 | ||
| 管理 | 管理人/巡回、管理会社/(株)TFDコミュニティ | ||
| 設備・条件 | BSアンテナ、CSアンテナ、光ファイバー、オートロック、TVドアホン、防犯カメラ、ダブルロックキー、宅配ボックス、駐輪場、エレベータ、2階以上、システムキッチン、バス・トイレ別、温水洗浄便座、浴室乾燥機、室内洗濯機置き場、フローリング、24時間換気システム、エアコン、バルコニー、分譲賃貸、敷金なし | ||
| 備考 | 保証人代行:必須/初回保証料30%(家賃+管理費)年間保証料10,000円 ※学生初回保証料9,000円 | ||
| 周辺施設 |
セブンイレブン 板橋高島平8丁目店(距離:288m) ココカラファイン 高島平駅前店(距離:349m) ファミリーマート 板橋新河岸二丁目店(距離:673m) まいばすけっと 高島平駅前店(距離:400m) |
||
| 物件番号 | 56503 | 取引態様 | 仲介 |
| 情報更新日 | *** | ||
| 次回更新予定日 | 情報更新日より15日以内 | ||

















COMMENTS FROM STAFFルーブル高島平【満室】の
担当者コメント
東京の1人暮らしはアセットナビへ!自社ブランドマンションをはじめ、賃貸物件を数多くご紹介可能です。こちらの物件は、分譲賃貸マンションで設備が充実しております。オートロックシステムでセキュリティもバッチリです。