トーシンフェニックス方南町弐番館【満室】 *** | 1DK | ***
本情報は過去に掲載された物件の参考情報です。 最新の物件情報など詳細につきましてはお気軽にお問合せください。
| 賃料 | *** | 管理費・共益費 | *** |
|---|---|---|---|
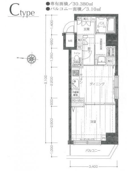
| 敷金/礼金 | *** / *** | 専有面積 | 30.38m² |
| 間取り | 1DK | 階建 | ***/10階建 |
トーシンフェニックス方南町弐番館【満室】の詳細
| 賃料 | *** | 管理費・共益費 | *** |
|---|---|---|---|
| 敷金/保証金 | *** / *** | 礼金/償却・敷引 | *** / *** |
| 更新料 | *** | フリーレント | *** |
| その他費用 | *** | ||
| 所在地 | 東京都杉並区方南2丁目 | ||
| 交通 |
東京地下鉄方南支線「方南町」 徒歩3分 京王電鉄京王線「代田橋」 徒歩18分 京王電鉄京王線「笹塚」 徒歩22分 |
||
| 間取り | 1DK | 間取り内訳 |
DK 4.8 畳 洋室 5.4 畳 |
| 専有面積 | 30.38m² | バルコニー面積 | |
| 築年月(築年数) | 2006年10月(築19年) | 方位 | 西 |
| 建物構造 | RC(鉄筋コンクリート) | 所在階/階建 | ***/10階建 |
| 総戸数 | 92戸 | 駐車場 | |
| 保険料 | *** | 契約期間 | *** |
| 引渡 | 2022年04月 | ||
| 現況(予定年月) | 空室 | ||
| 管理 | |||
| 設備・条件 | CATV、オートロック、宅配ボックス、駐輪場、エレベータ、デザイナーズ、角部屋、システムキッチン、バス・トイレ別、温水洗浄便座、室内洗濯機置き場、フローリング、24時間換気システム、エアコン、バルコニー、分譲賃貸 | ||
| 備考 | 保証人代行:必須/賃料管理費総額の50%~ | ||
| 周辺施設 |
肉のハナマサ 方南町店(距離:84m) サミットストア 和泉店(距離:310m) ファミリーマート 杉並和泉店(距離:306m) ローソン LTF 杉並方南町(距離:174m) マツモトキヨシ 方南町店(距離:215m) |
||
| 物件番号 | 24777 | 取引態様 | 代理 |
| 情報更新日 | *** | ||
| 次回更新予定日 | 情報更新日より15日以内 | ||



















COMMENTS FROM STAFFトーシンフェニックス方南町弐番館【満室】の
担当者コメント
東京の1人暮らしはアセットナビへ!自社ブランドマンションをはじめ、賃貸物件を数多くご紹介可能です。こちらの物件は、分譲賃貸マンションで設備が充実しております。オートロックシステムでセキュリティもバッチリです。