クレイシア板橋モデルノ【満室】 *** | 1K | ***
本情報は過去に掲載された物件の参考情報です。 最新の物件情報など詳細につきましてはお気軽にお問合せください。
| 賃料 | *** | 管理費・共益費 | *** |
|---|---|---|---|
| 敷金/礼金 | *** / *** | 専有面積 | 25.62m² |
| 間取り | 1K | 階建 | ***/14階建 |
クレイシア板橋モデルノ【満室】の詳細
| 賃料 | *** | 管理費・共益費 | *** |
|---|---|---|---|
| 敷金/保証金 | *** / *** | 礼金/償却・敷引 | *** / *** |
| 更新料 | *** | フリーレント | *** |
| その他費用 | *** | ||
| 所在地 | 東京都板橋区板橋4丁目 | ||
| 交通 |
埼京線「板橋」 徒歩8分 都営三田線「新板橋」 徒歩6分 東武鉄道東上線「下板橋」 徒歩6分 |
||
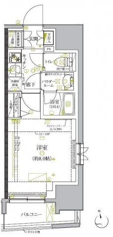
| 間取り | 1K | 間取り内訳 |
洋室 8 畳 |
| 専有面積 | 25.62m² | バルコニー面積 | |
| 築年月(築年数) | 2018年02月(築7年) | 方位 | 南 |
| 建物構造 | RC(鉄筋コンクリート) | 所在階/階建 | ***/14階建 |
| 総戸数 | 52戸 | 駐車場 | |
| 保険料 | *** | 契約期間 | *** |
| 引渡 | 2025年11月 | ||
| 現況(予定年月) | 居住中 | ||
| 管理 | |||
| 設備・条件 | BSアンテナ、CSアンテナ、光ファイバー、オートロック、防犯カメラ、ディンプルキー、ダブルロックキー、宅配ボックス、エレベータ、デザイナーズ、2階以上、角部屋、システムキッチン、バス・トイレ別、温水洗浄便座、浴室乾燥機、室内洗濯機置き場、フローリング、24時間換気システム、エアコン、バルコニー、分譲賃貸、ペット不可 | ||
| 備考 | 保証人代行:必須/総賃料の40%~ | ||
| 周辺施設 |
ローソン 板橋二丁目店(距離:149m) セブンイレブン 板橋3丁目南店(距離:179m) 株式会社スーパーみらべる本部(距離:331m) まいばすけっと 板橋宿店(距離:319m) ウエルシア板橋下板橋店(距離:442m) |
||
| 物件番号 | 63405 | 取引態様 | 仲介 |
| 情報更新日 | *** | ||
| 次回更新予定日 | 情報更新日より15日以内 | ||



















COMMENTS FROM STAFFクレイシア板橋モデルノ【満室】の
担当者コメント
東京の1人暮らしはアセットナビへ!自社ブランドマンションをはじめ、賃貸物件を数多くご紹介可能です。こちらの物件は、分譲賃貸マンションで設備が充実しております。オートロックシステムでセキュリティもバッチリです。