ルーブル蒲田壱番館【満室】 *** | 1K | ***
本情報は過去に掲載された物件の参考情報です。 最新の物件情報など詳細につきましてはお気軽にお問合せください。
| 賃料 | *** | 管理費・共益費 | *** |
|---|---|---|---|
| 敷金/礼金 | *** / *** | 専有面積 | 20.96m² |
| 間取り | 1K | 階建 | ***/13階建 |
ルーブル蒲田壱番館【満室】の詳細
| 賃料 | *** | 管理費・共益費 | *** |
|---|---|---|---|
| 敷金/保証金 | *** / *** | 礼金/償却・敷引 | *** / *** |
| 更新料 | *** | フリーレント | *** |
| その他費用 | *** | ||
| 所在地 | 東京都大田区西蒲田7丁目 | ||
| 交通 |
京浜東北・根岸線「蒲田」 徒歩7分 東急池上線「蓮沼」 徒歩2分 東急多摩川線「矢口渡」 徒歩20分 |
||
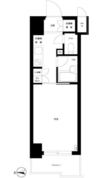
| 間取り | 1K | 間取り内訳 |
K 1.5 畳 3 階 洋室 6 畳 3 階 |
| 専有面積 | 20.96m² | バルコニー面積 | |
| 築年月(築年数) | 2002年04月(築23年) | 方位 | 西 |
| 建物構造 | SRC(鉄骨鉄筋コンクリート) | 所在階/階建 | ***/13階建 |
| 総戸数 | 80戸 | 駐車場 | 無 |
| 保険料 | *** | 契約期間 | *** |
| 引渡 | 2025年10月 | ||
| 現況(予定年月) | 居住中 | ||
| 管理 | |||
| 設備・条件 | BSアンテナ、オートロック、TVドアホン、宅配ボックス、駐輪場、エレベータ、2階以上、システムキッチン、バス・トイレ別、室内洗濯機置き場、洗濯機置き場有、フローリング、エアコン、バルコニー、分譲賃貸、敷金なし | ||
| 備考 | 保証人代行:必須/エポス、他家賃総額の30%~ | ||
| 周辺施設 |
ライフ西蒲田店(距離:248m) ファミリーマート蓮沼駅西店(距離:235m) ローソン・スリーエフ大田蓮沼駅前店(距離:90m) |
||
| 物件番号 | 15659 | 取引態様 | 仲介 |
| 情報更新日 | *** | ||
| 次回更新予定日 | 情報更新日より15日以内 | ||



















COMMENTS FROM STAFFルーブル蒲田壱番館【満室】の
担当者コメント
東京の1人暮らしはアセットナビへ!自社ブランドマンションをはじめ、賃貸物件を数多くご紹介可能です。こちらの物件は、分譲賃貸マンションで設備が充実しております。オートロックシステムでセキュリティもバッチリです。