メインステージ川口リンクス【満室】 *** | 2K | ***
本情報は過去に掲載された物件の参考情報です。 最新の物件情報など詳細につきましてはお気軽にお問合せください。
| 賃料 | *** | 管理費・共益費 | *** |
|---|---|---|---|
| 敷金/礼金 | *** / *** | 専有面積 | 25.41m² |
| 間取り | 2K | 階建 | ***/6階建 |
メインステージ川口リンクス【満室】の詳細
| 賃料 | *** | 管理費・共益費 | *** |
|---|---|---|---|
| 敷金/保証金 | *** / *** | 礼金/償却・敷引 | *** / *** |
| 更新料 | *** | フリーレント | *** |
| その他費用 | *** | ||
| 所在地 | 埼玉県川口市原町 | ||
| 交通 |
京浜東北・根岸線「川口」 徒歩11分 京浜東北・根岸線「西川口」 徒歩22分 埼玉高速鉄道「川口元郷」 徒歩30分 |
||
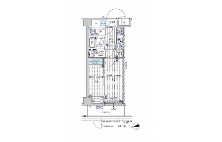
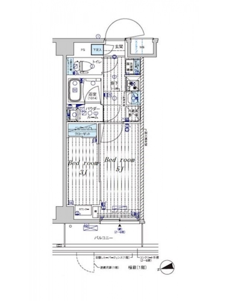
| 間取り | 2K | 間取り内訳 |
洋室 5 畳 洋室 3 畳 |
| 専有面積 | 25.41m² | バルコニー面積 | |
| 築年月(築年数) | 2022年09月(築3年) | 方位 | 西 |
| 建物構造 | RC(鉄筋コンクリート) | 所在階/階建 | ***/6階建 |
| 総戸数 | 駐車場 | ||
| 保険料 | *** | 契約期間 | *** |
| 引渡 | 2024年05月 | ||
| 現況(予定年月) | 空室 | ||
| 管理 | |||
| 設備・条件 | BSアンテナ、CSアンテナ、光ファイバー、オートロック、TVドアホン、防犯カメラ、宅配ボックス、バイク置き場、駐輪場、エレベータ、デザイナーズ、2階以上、最上階、システムキッチン、バス・トイレ別、温水洗浄便座、浴室乾燥機、室内洗濯機置き場、フローリング、24時間換気システム、エアコン、バルコニー、分譲賃貸、敷金なし、ペット相談 | ||
| 備考 | 保証人代行:必須/エポスカード、家賃総額の50%~ | ||
| 周辺施設 |
ローソン 川口六丁目店(距離:371m) セブンイレブン 川口原町店(距離:362m) コモディイイダ 仲町店(距離:500m) オーケー 川口店(距離:639m) ドラッグセイムス 原町店(距離:145m) |
||
| 物件番号 | 49574 | 取引態様 | 仲介 |
| 情報更新日 | *** | ||
| 次回更新予定日 | 情報更新日より15日以内 | ||

















COMMENTS FROM STAFFメインステージ川口リンクス【満室】の
担当者コメント
東京の1人暮らしはアセットナビへ!自社ブランドマンションをはじめ、賃貸物件を数多くご紹介可能です。こちらの物件は、分譲賃貸マンションで設備が充実しております。オートロックシステムでセキュリティもバッチリです。快適な独立洗面台つき。お手入れラクラク温水洗浄便座。雨の日でも洗濯物が干せる浴室乾燥機。いつでも荷物が受け取れる宅配ボックス。