ルーブル中目黒【満室】 *** | 1K | ***
本情報は過去に掲載された物件の参考情報です。 最新の物件情報など詳細につきましてはお気軽にお問合せください。
| 賃料 | *** | 管理費・共益費 | *** |
|---|---|---|---|
| 敷金/礼金 | *** / *** | 専有面積 | 19.57m² |
| 間取り | 1K | 階建 | ***/5階建 |
ルーブル中目黒【満室】の詳細
| 賃料 | *** | 管理費・共益費 | *** |
|---|---|---|---|
| 敷金/保証金 | *** / *** | 礼金/償却・敷引 | *** / *** |
| 更新料 | *** | フリーレント | *** |
| その他費用 | *** | ||
| 所在地 | 東京都目黒区東山1丁目 | ||
| 交通 |
東急東横線「中目黒」 徒歩12分 東急東横線「祐天寺」 徒歩10分 東急田園都市線「池尻大橋」 徒歩13分 |
||
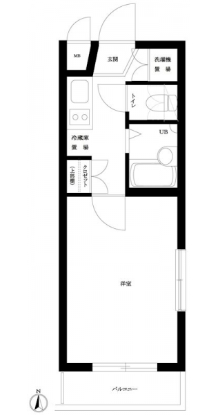
| 間取り | 1K | 間取り内訳 |
洋室 6 畳 5 階 K 2 畳 5 階 |
| 専有面積 | 19.57m² | バルコニー面積 | |
| 築年月(築年数) | 2000年05月(築25年) | 方位 | 南 |
| 建物構造 | RC(鉄筋コンクリート) | 所在階/階建 | ***/5階建 |
| 総戸数 | 43戸 | 駐車場 | 無 |
| 保険料 | *** | 契約期間 | *** |
| 引渡 | 2023年10月 | ||
| 現況(予定年月) | 空室 | ||
| 管理 | 管理人/巡回、管理会社/(株)TFDコミュニティ | ||
| 設備・条件 | BSアンテナ、CSアンテナ、オートロック、TVドアホン、防犯カメラ、宅配ボックス、駐輪場、エレベータ、2階以上、最上階、角部屋、システムキッチン、バス・トイレ別、室内洗濯機置き場、フローリング、エアコン、バルコニー、分譲賃貸、敷金なし | ||
| 備考 | 保証人代行:必須/初回保証料30%(家賃+管理費) ※外国籍の方は50%+¥2000 | ||
| 周辺施設 |
セブンイレブン 上目黒5丁目店(距離:66m) スーパーヤオカク(距離:387m) ミニストップ 東山2丁目店(距離:354m) ウエルシア目黒青葉台店(距離:747m) まいばすけっと 目黒青葉台1丁目店(距離:746m) ウエルシア上目黒2丁目店(距離:785m) |
||
| 物件番号 | 41005 | 取引態様 | 仲介 |
| 情報更新日 | *** | ||
| 次回更新予定日 | 情報更新日より15日以内 | ||

















COMMENTS FROM STAFFルーブル中目黒【満室】の
担当者コメント
東京の1人暮らしはアセットナビへ!自社ブランドマンションをはじめ、賃貸物件を数多くご紹介可能です。