リヴシティ新宿壱番館【満室】 *** | 1K | ***
本情報は過去に掲載された物件の参考情報です。 最新の物件情報など詳細につきましてはお気軽にお問合せください。
| 賃料 | *** | 管理費・共益費 | *** |
|---|---|---|---|
| 敷金/礼金 | *** / *** | 専有面積 | 21.00m² |
| 間取り | 1K | 階建 | ***/7階建 |
リヴシティ新宿壱番館【満室】の詳細
| 賃料 | *** | 管理費・共益費 | *** |
|---|---|---|---|
| 敷金/保証金 | *** / *** | 礼金/償却・敷引 | *** / *** |
| 更新料 | *** | フリーレント | *** |
| その他費用 | *** | ||
| 所在地 | 東京都新宿区北新宿1丁目 | ||
| 交通 |
東京地下鉄丸ノ内線「西新宿」 徒歩7分 総武・中央緩行線「大久保(東京)」 徒歩7分 西武鉄道新宿線「西武新宿」 徒歩11分 |
||
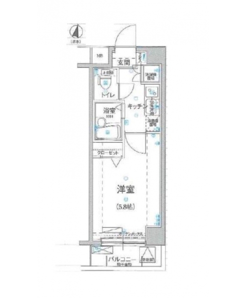
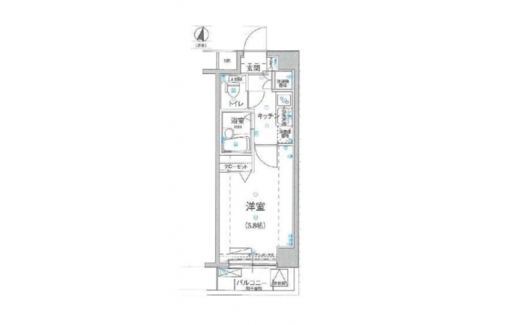
| 間取り | 1K | 間取り内訳 |
洋室 5.8 畳 |
| 専有面積 | 21.00m² | バルコニー面積 | |
| 築年月(築年数) | 2002年05月(築23年) | 方位 | 南 |
| 建物構造 | RC(鉄筋コンクリート) | 所在階/階建 | ***/7階建 |
| 総戸数 | 駐車場 | ||
| 保険料 | *** | 契約期間 | *** |
| 引渡 | 2023年06月 | ||
| 現況(予定年月) | 賃貸中 | ||
| 管理 | |||
| 設備・条件 | オートロック、宅配ボックス、エレベータ、デザイナーズ、2階以上、南向き部屋、システムキッチン、バス・トイレ別、温水洗浄便座、室内洗濯機置き場、フローリング、エアコン、バルコニー、分譲賃貸、日当たり良好、敷金なし、ペット相談 | ||
| 備考 | 保証人代行:必須/にじいろライフ、家賃総額の80%、月額:1,000円~家賃総額の1%、月額:550円 | ||
| 周辺施設 |
まいばすけっと 北新宿税務署通り店(距離:238m) オリンピック 新宿百人町店(距離:327m) ファミリーマート 新宿税務署通り店(距離:256m) |
||
| 物件番号 | 37846 | 取引態様 | 仲介 |
| 情報更新日 | *** | ||
| 次回更新予定日 | 情報更新日より15日以内 | ||





















COMMENTS FROM STAFFリヴシティ新宿壱番館【満室】の
担当者コメント
東京の1人暮らしはアセットナビへ!自社ブランドマンションをはじめ、賃貸物件を数多くご紹介可能です。こちらの物件は、分譲賃貸マンションで設備が充実しております。オートロックシステムでセキュリティもバッチリです。※ペット飼育相談可、敷金1ヶ月追加(償却)