スタンビューレ中野坂上【満室】 *** | 1LDK | ***
本情報は過去に掲載された物件の参考情報です。 最新の物件情報など詳細につきましてはお気軽にお問合せください。
| 賃料 | *** | 管理費・共益費 | *** |
|---|---|---|---|
| 敷金/礼金 | *** / *** | 専有面積 | 36.68m² |
| 間取り | 1LDK | 階建 | ***/10階建 |
スタンビューレ中野坂上【満室】の詳細
| 賃料 | *** | 管理費・共益費 | *** |
|---|---|---|---|
| 敷金/保証金 | *** / *** | 礼金/償却・敷引 | *** / *** |
| 更新料 | *** | フリーレント | *** |
| その他費用 | *** | ||
| 所在地 | 東京都中野区中央2丁目 | ||
| 交通 |
東京地下鉄丸ノ内線「中野坂上」 徒歩2分 総武・中央緩行線「東中野」 徒歩14分 都営大江戸線「西新宿五丁目」 徒歩17分 |
||
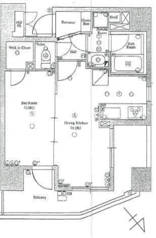
| 間取り | 1LDK | 間取り内訳 |
LDK 9.1 畳 洋室 5.3 畳 |
| 専有面積 | 36.68m² | バルコニー面積 | |
| 築年月(築年数) | 2005年01月(築21年) | 方位 | 北東 |
| 建物構造 | RC(鉄筋コンクリート) | 所在階/階建 | ***/10階建 |
| 総戸数 | 36戸 | 駐車場 | 無 |
| 保険料 | *** | 契約期間 | *** |
| 引渡 | 2024年03月 | ||
| 現況(予定年月) | 居住中 | ||
| 管理 | |||
| 設備・条件 | BSアンテナ、CSアンテナ、CATV、オートロック、TVドアホン、防犯カメラ、宅配ボックス、エレベータ、2階以上、角部屋、システムキッチン、バス・トイレ別、温水洗浄便座、浴室乾燥機、追い焚き、室内洗濯機置き場、フローリング、24時間換気システム、エアコン、ウォークインクローゼット、バルコニー、分譲賃貸、ペット相談 | ||
| 備考 | 保証人代行:必須/賃料総額の50%~ | ||
| 周辺施設 |
Olympic中野坂上店(距離:333m) マルエツプチ中野中央店(距離:659m) マルマンストア中野店(距離:752m) セブンイレブン東中野2丁目店(距離:355m) ファミリーマート中野中央二丁目店(距離:479m) |
||
| 物件番号 | 45666 | 取引態様 | 仲介 |
| 情報更新日 | *** | ||
| 次回更新予定日 | 情報更新日より15日以内 | ||















COMMENTS FROM STAFFスタンビューレ中野坂上【満室】の
担当者コメント
東京の1人暮らしはアセットナビへ!自社ブランドマンションをはじめ、賃貸物件を数多くご紹介可能です。こちらの物件は、分譲賃貸マンションで設備が充実しております。オートロックシステムでセキュリティもバッチリです。