シティインデックス神田【満室】 *** | 1LDK | ***
本情報は過去に掲載された物件の参考情報です。 最新の物件情報など詳細につきましてはお気軽にお問合せください。
| 賃料 | *** | 管理費・共益費 | *** |
|---|---|---|---|
| 敷金/礼金 | *** / *** | 専有面積 | 32.09m² |
| 間取り | 1LDK | 階建 | ***/15階建 |
シティインデックス神田【満室】の詳細
| 賃料 | *** | 管理費・共益費 | *** |
|---|---|---|---|
| 敷金/保証金 | *** / *** | 礼金/償却・敷引 | *** / *** |
| 更新料 | *** | フリーレント | *** |
| その他費用 | *** | ||
| 所在地 | 東京都千代田区岩本町2丁目 | ||
| 交通 |
都営新宿線「岩本町」 徒歩3分 総武本線「新日本橋」 徒歩8分 東京地下鉄日比谷線「小伝馬町」 徒歩8分 |
||
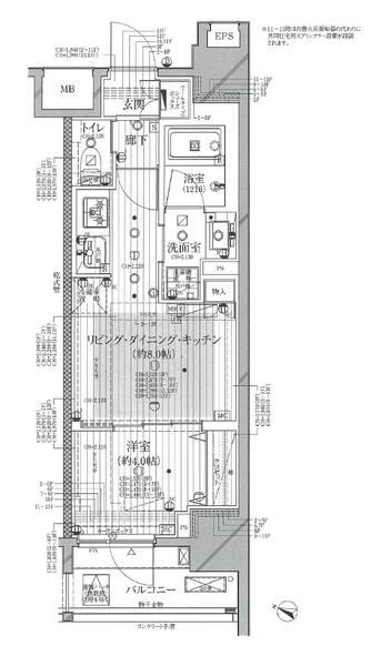
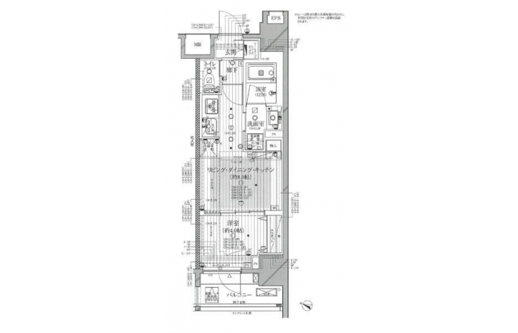
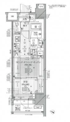
| 間取り | 1LDK | 間取り内訳 |
LDK 8 畳 8 階 洋室 4 畳 8 階 |
| 専有面積 | 32.09m² | バルコニー面積 | |
| 築年月(築年数) | 2016年10月(築9年) | 方位 | 南西 |
| 建物構造 | RC(鉄筋コンクリート) | 所在階/階建 | ***/15階建 |
| 総戸数 | 110戸 | 駐車場 | |
| 保険料 | *** | 契約期間 | *** |
| 引渡 | 相談 | ||
| 現況(予定年月) | 空室 | ||
| 管理 | |||
| 設備・条件 | オートロック、TVドアホン、防犯カメラ、ディンプルキー、ダブルロックキー、宅配ボックス、エレベータ、2階以上、システムキッチン、バス・トイレ別、温水洗浄便座、浴室乾燥機、追い焚き、室内洗濯機置き場、洗濯機置き場有、フローリング、エアコン、バルコニー | ||
| 備考 | 保証人代行:必須/総賃料の40%~ | ||
| 周辺施設 |
ミニストップ 岩本町2丁目店(距離:171m) セブンイレブン 千代田岩本町3丁目店(距離:137m) まいばすけっと 岩本町2丁目店(距離:220m) マツモトキヨシ 岩本町駅前店(距離:373m) 成城石井 小伝馬町店(距離:633m) maruetsu(マルエツ) プチ 小伝馬町駅前店(距離:625m) |
||
| 物件番号 | 54036 | 取引態様 | 仲介 |
| 情報更新日 | *** | ||
| 次回更新予定日 | 情報更新日より15日以内 | ||
















COMMENTS FROM STAFFシティインデックス神田【満室】の
担当者コメント
東京の1人暮らしはアセットナビへ!自社ブランドマンションをはじめ、賃貸物件を数多くご紹介可能です。こちらの物件は、分譲賃貸マンションで設備が充実しております。オートロックシステムでセキュリティもバッチリです。