メインステージ八幡山【満室】 *** | 1LDK | ***
本情報は過去に掲載された物件の参考情報です。 最新の物件情報など詳細につきましてはお気軽にお問合せください。
| 賃料 | *** | 管理費・共益費 | *** |
|---|---|---|---|
| 敷金/礼金 | *** / *** | 専有面積 | 45.98m² |
| 間取り | 1LDK | 階建 | ***/12階建 |
メインステージ八幡山【満室】の詳細
| 賃料 | *** | 管理費・共益費 | *** |
|---|---|---|---|
| 敷金/保証金 | *** / *** | 礼金/償却・敷引 | *** / *** |
| 更新料 | *** | フリーレント | *** |
| その他費用 | *** | ||
| 所在地 | 東京都杉並区上高井戸3丁目 | ||
| 交通 |
京王電鉄京王線「八幡山」 徒歩9分 京王電鉄井の頭線「高井戸」 徒歩13分 京王電鉄京王線「上北沢」 徒歩14分 |
||
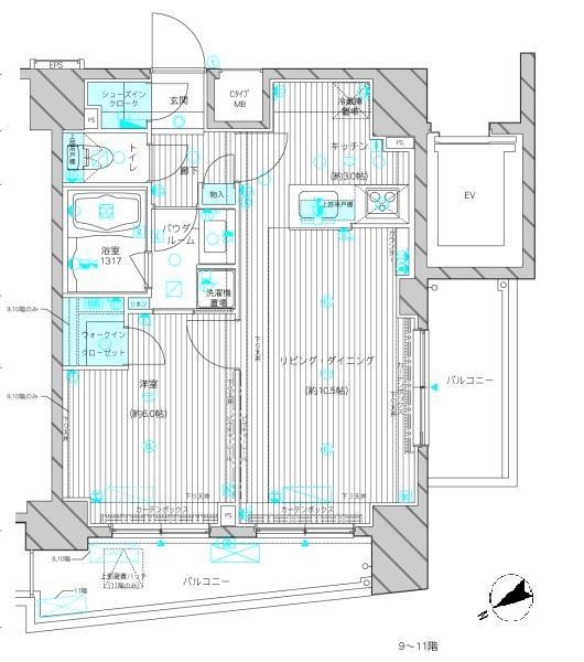
| 間取り | 1LDK | 間取り内訳 |
洋室 6 畳 LD 13.5 畳 その他 10.5畳 |
| 専有面積 | 45.98m² | バルコニー面積 | |
| 築年月(築年数) | 2009年06月(築16年) | 方位 | 西 |
| 建物構造 | RC(鉄筋コンクリート) | 所在階/階建 | ***/12階建 |
| 総戸数 | 駐車場 | ||
| 保険料 | *** | 契約期間 | *** |
| 引渡 | 即時 | ||
| 現況(予定年月) | 空室 | ||
| 管理 | |||
| 設備・条件 | BSアンテナ、CSアンテナ、CATV、光ファイバー、オートロック、TVドアホン、防犯カメラ、ディンプルキー、ダブルロックキー、宅配ボックス、エレベータ、デザイナーズ、2階以上、最上階、角部屋、システムキッチン、バス・トイレ別、温水洗浄便座、浴室乾燥機、室内洗濯機置き場、フローリング、24時間換気システム、エアコン、ウォークインクローゼット、シューズインクローゼット、バルコニー、分譲賃貸、礼金なし、敷金なし、ペット相談 | ||
| 備考 | 保証人代行:必須/総賃料の50%~ | ||
| 周辺施設 |
SuperValue(スーパー バリュー) 杉並高井戸店(距離:298m) オオゼキ 八幡山店(距離:702m) セブンイレブン 環八高井戸店(距離:455m) セブンイレブン 上北沢5丁目店(距離:559m) くすりセイジョー 芦花公園店(距離:1,202m) |
||
| 物件番号 | 39505 | 取引態様 | 仲介 |
| 情報更新日 | *** | ||
| 次回更新予定日 | 情報更新日より15日以内 | ||













COMMENTS FROM STAFFメインステージ八幡山【満室】の
担当者コメント
東京の1人暮らしはアセットナビへ!自社ブランドマンションをはじめ、賃貸物件を数多くご紹介可能です。こちらの物件は、分譲賃貸マンションで設備が充実しております。オートロックシステムでセキュリティもバッチリです。