メインステージ高円寺【満室】 *** | 1K | ***
本情報は過去に掲載された物件の参考情報です。 最新の物件情報など詳細につきましてはお気軽にお問合せください。
| 賃料 | *** | 管理費・共益費 | *** |
|---|---|---|---|
| 敷金/礼金 | *** / *** | 専有面積 | 21.65m² |
| 間取り | 1K | 階建 | ***/8階建 |
メインステージ高円寺【満室】の詳細
| 賃料 | *** | 管理費・共益費 | *** |
|---|---|---|---|
| 敷金/保証金 | *** / *** | 礼金/償却・敷引 | *** / *** |
| 更新料 | *** | フリーレント | *** |
| その他費用 | *** | ||
| 所在地 | 東京都中野区野方1丁目 | ||
| 交通 |
中央本線「高円寺」 徒歩12分 西武鉄道新宿線「野方」 徒歩14分 東京地下鉄東西線「中野(東京)」 徒歩20分 |
||
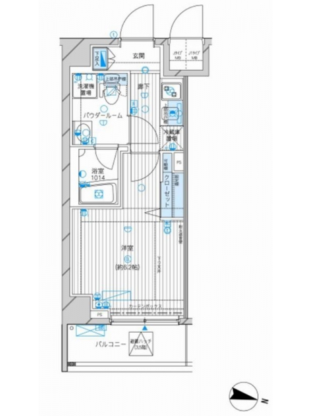
| 間取り | 1K | 間取り内訳 |
K 2 畳 洋室 6.2 畳 |
| 専有面積 | 21.65m² | バルコニー面積 | |
| 築年月(築年数) | 2009年02月(築16年) | 方位 | 北東 |
| 建物構造 | RC(鉄筋コンクリート) | 所在階/階建 | ***/8階建 |
| 総戸数 | 68戸 | 駐車場 | 無 |
| 保険料 | *** | 契約期間 | *** |
| 引渡 | 2022年04月 | ||
| 現況(予定年月) | 居住中 | ||
| 管理 | 管理人/巡回、 | ||
| 設備・条件 | BSアンテナ、CSアンテナ、オートロック、TVドアホン、防犯カメラ、宅配ボックス、エレベータ、角部屋、システムキッチン、バス・トイレ別、温水洗浄便座、浴室乾燥機、室内洗濯機置き場、フローリング、24時間換気システム、エアコン、バルコニー、分譲賃貸 | ||
| 備考 | 保証人代行:必須/管理会社指定:総家賃の50%~ 詳細はお問合せ下さい | ||
| 周辺施設 |
まいばすけっと高円寺大和陸橋店(距離:128m) マルエツプチ大和町店(距離:288m) セブンイレブン中野大和町1丁目店(距離:199m) セブンイレブン杉並高円寺北1丁目店(距離:457m) まいばすけっと高円寺大和陸橋店(距離:128m) ローソンストア100高円寺北店(距離:700m) |
||
| 物件番号 | 18401 | 取引態様 | 代理 |
| 情報更新日 | *** | ||
| 次回更新予定日 | 情報更新日より15日以内 | ||




















COMMENTS FROM STAFFメインステージ高円寺【満室】の
担当者コメント
東京の1人暮らしはアセットナビへ!自社ブランドマンションをはじめ、賃貸物件を数多くご紹介可能です。こちらの物件は、分譲賃貸マンションで設備が充実しております。オートロックシステムでセキュリティもバッチリです。