メインステージ千歳船橋【満室】 *** | 1K | ***
本情報は過去に掲載された物件の参考情報です。 最新の物件情報など詳細につきましてはお気軽にお問合せください。
| 賃料 | *** | 管理費・共益費 | *** |
|---|---|---|---|
| 敷金/礼金 | *** / *** | 専有面積 | 26.97m² |
| 間取り | 1K | 階建 | ***/8階建 |
メインステージ千歳船橋【満室】の詳細
| 賃料 | *** | 管理費・共益費 | *** |
|---|---|---|---|
| 敷金/保証金 | *** / *** | 礼金/償却・敷引 | *** / *** |
| 更新料 | *** | フリーレント | *** |
| その他費用 | *** | ||
| 所在地 | 東京都世田谷区船橋7丁目 | ||
| 交通 |
小田急電鉄小田原線「千歳船橋」 徒歩17分 京王電鉄京王線「上北沢」 徒歩23分 小田急電鉄小田原線「祖師ヶ谷大蔵」 徒歩20分 |
||
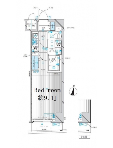
| 間取り | 1K | 間取り内訳 |
洋室 9.1 畳 K 2 畳 |
| 専有面積 | 26.97m² | バルコニー面積 | |
| 築年月(築年数) | 2011年02月(築14年) | 方位 | 南 |
| 建物構造 | RC(鉄筋コンクリート) | 所在階/階建 | ***/8階建 |
| 総戸数 | 50戸 | 駐車場 | |
| 保険料 | *** | 契約期間 | *** |
| 引渡 | 即時 | ||
| 現況(予定年月) | 空室 | ||
| 管理 | 管理人/巡回、 | ||
| 設備・条件 | BSアンテナ、CSアンテナ、光ファイバー、オートロック、TVドアホン、防犯カメラ、ディンプルキー、宅配ボックス、バイク置き場、駐輪場、エレベータ、デザイナーズ、2階以上、南向き部屋、システムキッチン、バス・トイレ別、温水洗浄便座、浴室乾燥機、室内洗濯機置き場、フローリング、24時間換気システム、エアコン、バルコニー、分譲賃貸、日当たり良好、ルームシェア相談 | ||
| 備考 | 保証人代行:必須/オリコフォレントインシュア、他、家賃総額の50%~ | ||
| 周辺施設 |
サミットストア 千歳台店(距離:762m) ファミリーマート 船橋希望丘通り店(距離:214m) セブンイレブン 世田谷船橋希望ヶ丘通り店(距離:130m) 業務スーパー 粕谷店(距離:832m) みさき薬局千歳台(距離:316m) |
||
| 物件番号 | 30461 | 取引態様 | 仲介 |
| 情報更新日 | *** | ||
| 次回更新予定日 | 情報更新日より15日以内 | ||





















COMMENTS FROM STAFFメインステージ千歳船橋【満室】の
担当者コメント
東京の1人暮らしはアセットナビへ!自社ブランドマンションをはじめ、賃貸物件を数多くご紹介可能です。こちらの物件は、分譲賃貸マンションで設備が充実しております。オートロックシステムでセキュリティもバッチリです。