ルーブル高田馬場参番館【満室】 *** | 1K | ***
本情報は過去に掲載された物件の参考情報です。 最新の物件情報など詳細につきましてはお気軽にお問合せください。
| 賃料 | *** | 管理費・共益費 | *** |
|---|---|---|---|
| 敷金/礼金 | *** / *** | 専有面積 | 25.50m² |
| 間取り | 1K | 階建 | ***/7階建 |
ルーブル高田馬場参番館【満室】の詳細
| 賃料 | *** | 管理費・共益費 | *** |
|---|---|---|---|
| 敷金/保証金 | *** / *** | 礼金/償却・敷引 | *** / *** |
| 更新料 | *** | フリーレント | *** |
| その他費用 | *** | ||
| 所在地 | 東京都新宿区高田馬場2丁目 | ||
| 交通 |
東京地下鉄東西線「高田馬場」 徒歩6分 東京地下鉄副都心線「西早稲田」 徒歩7分 都営荒川線「学習院下」 徒歩7分 |
||
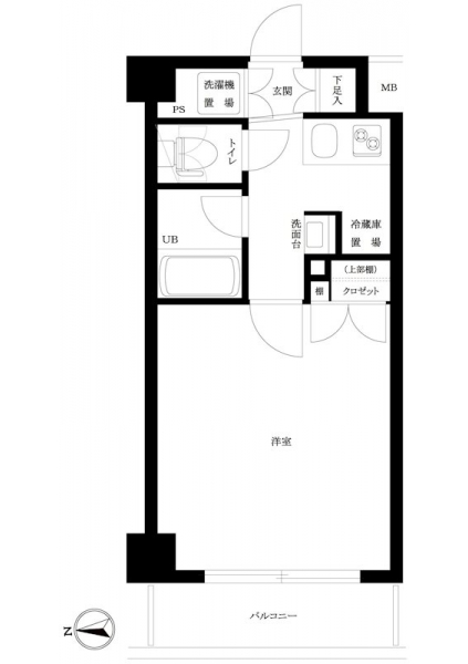
| 間取り | 1K | 間取り内訳 |
洋室 7.5 畳 5 階 K 2.5 畳 5 階 |
| 専有面積 | 25.50m² | バルコニー面積 | |
| 築年月(築年数) | 2013年08月(築12年) | 方位 | 西 |
| 建物構造 | RC(鉄筋コンクリート) | 所在階/階建 | ***/7階建 |
| 総戸数 | 53戸 | 駐車場 | |
| 保険料 | *** | 契約期間 | *** |
| 引渡 | 2025年05月 | ||
| 現況(予定年月) | 空室 | ||
| 管理 | 管理人/巡回、管理会社/(株)TFDコミュニティ | ||
| 設備・条件 | BSアンテナ、CSアンテナ、光ファイバー、オートロック、TVドアホン、防犯カメラ、ダブルロックキー、宅配ボックス、駐輪場、エレベータ、システムキッチン、バス・トイレ別、温水洗浄便座、浴室乾燥機、室内洗濯機置き場、フローリング、24時間換気システム、エアコン、分譲賃貸、敷金なし、ペット不可 | ||
| 備考 | 保証人代行:必須/初回保証料30%(家賃+共益費)年間保証料10000円 ※学生初回保証料9000円 | ||
| 周辺施設 |
成城石井 高田馬場店(距離:186m) まいばすけっと 高田馬場駅北店(距離:460m) セブンイレブン 高田馬場1丁目店(距離:304m) ファミリーマート 高田馬場早稲田通り店(距離:215m) スギ薬局 高田馬場店(距離:311m) |
||
| 物件番号 | 60337 | 取引態様 | 仲介 |
| 情報更新日 | *** | ||
| 次回更新予定日 | 情報更新日より15日以内 | ||



















COMMENTS FROM STAFFルーブル高田馬場参番館【満室】の
担当者コメント
東京の1人暮らしはアセットナビへ!自社ブランドマンションをはじめ、賃貸物件を数多くご紹介可能です。こちらの物件は、分譲賃貸マンションで設備が充実しております。オートロックシステムでセキュリティもバッチリです。