ルーブル高田馬場参番館【満室】 *** | 1K | ***
本情報は過去に掲載された物件の参考情報です。 最新の物件情報など詳細につきましてはお気軽にお問合せください。
| 賃料 | *** | 管理費・共益費 | *** |
|---|---|---|---|
| 敷金/礼金 | *** / *** | 専有面積 | 25.72m² |
| 間取り | 1K | 階建 | ***/7階建 |
ルーブル高田馬場参番館【満室】の詳細
| 賃料 | *** | 管理費・共益費 | *** |
|---|---|---|---|
| 敷金/保証金 | *** / *** | 礼金/償却・敷引 | *** / *** |
| 更新料 | *** | フリーレント | *** |
| その他費用 | *** | ||
| 所在地 | 東京都新宿区高田馬場2丁目 | ||
| 交通 |
山手線「高田馬場」 徒歩6分 東京地下鉄副都心線「西早稲田」 徒歩7分 都営荒川線「学習院下」 徒歩6分 |
||
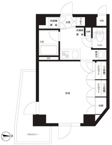
| 間取り | 1K | 間取り内訳 |
洋室 7.5 畳 2 階 K 2.5 畳 2 階 |
| 専有面積 | 25.72m² | バルコニー面積 | |
| 築年月(築年数) | 2013年08月(築12年) | 方位 | 西 |
| 建物構造 | RC(鉄筋コンクリート) | 所在階/階建 | ***/7階建 |
| 総戸数 | 53戸 | 駐車場 | |
| 保険料 | *** | 契約期間 | *** |
| 引渡 | 即時 | ||
| 現況(予定年月) | 空室 | ||
| 管理 | |||
| 設備・条件 | BSアンテナ、CSアンテナ、光ファイバー、オートロック、TVドアホン、防犯カメラ、ディンプルキー、ダブルロックキー、宅配ボックス、駐輪場、エレベータ、2階以上、角部屋、システムキッチン、バス・トイレ別、温水洗浄便座、浴室乾燥機、室内洗濯機置き場、洗濯機置き場有、フローリング、24時間換気システム、エアコン、バルコニー、分譲賃貸、敷金なし、ペット不可 | ||
| 備考 | 保証人代行:必須/必須 初回保証料30%(家賃+共益費)年間保証料10000円 | ||
| 周辺施設 |
ファミリーマート 高田三丁目店(距離:249m) ファミリーマート アイズ高田馬場店(距離:190m) セブンイレブン 高田馬場2丁目店(距離:222m) ファミリーマート いずみや高田店(距離:346m) セブンイレブン 高田馬場1丁目店(距離:326m) マツモトキヨシ 高田馬場二丁目店(距離:296m) |
||
| 物件番号 | 50128 | 取引態様 | 仲介 |
| 情報更新日 | *** | ||
| 次回更新予定日 | 情報更新日より15日以内 | ||



















COMMENTS FROM STAFFルーブル高田馬場参番館【満室】の
担当者コメント
東京の1人暮らしはアセットナビへ!自社ブランドマンションをはじめ、賃貸物件を数多くご紹介可能です。こちらの物件は、分譲賃貸マンションで設備が充実しております。オートロックシステムでセキュリティもバッチリです。