本情報は過去に掲載された物件の参考情報です。 最新の物件情報など詳細につきましてはお気軽にお問合せください。
| 賃料 | *** | 管理費・共益費 | *** |
|---|---|---|---|
| 敷金/礼金 | *** / *** | 専有面積 | 25.62m² |
| 間取り | 1K | 階建 | ***/5階建 |
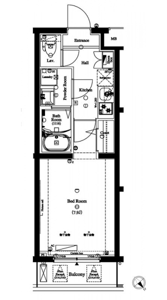
【間取り】間取図
【キッチン】キッチン
【リビング】居室
【風呂】バス
【ベッドルーム】
【玄関】玄関
【バルコニー・ベランダ】バルコニー
【洗面所】洗面所
【トイレ】トイレ
【収納】収納
【その他】その他共有部分
【その他】設備
【収納】収納
【その他】その他
【その他】その他
【外観】白とグレーのツートンが織りなす、スタイリッシュなファサード。
【外観】日が沈む頃はまた違う味を感じられます。
【外観】街並みに調和するシックな色調でありながら新鮮で都会的な印象を与える洗練されたデザイン性がステイタスのあるライフステージを創出します。
【エントランス】建物の個性やクオリティー、さらにはブランド力のあるエリアのステイタスにふさわしいデザイン性をも象徴するのがエントランス。
【エントランス】内外部の壁面には色合いや質感に優れた高級感あふれる面材をふんだんに使用、プライベートエリアへのプロローグを上品に、そしてドラマティックに演出します。
【エントランスホール】エントランス内に歩みを進めた瞬間、都会の喧騒とは無縁の静寂の世界へと誘われます。
【エントランスホール】安心×高級感の両方を備えたホテルライクの共用廊下。
【外観ロゴ】ステイタスある外観に相応しいロゴデザイン☆
【エントランス】エレガントな雰囲気に包まれたエントランスホール。
【エントランス】建物の個性やクオリティー、さらにはブランド力のあるエリアのステイタスにふさわしいデザイン性をも象徴するのがエントランス。
【エントランスホール】エントランス内に歩みを進めた瞬間、都会の喧騒とは無縁の静寂の世界へと誘われます。
【エントランスホール】エレガントな雰囲気に包まれたエントランスホール。
【オートロック】エントランスの集合玄関機のカメラにより訪問者を映像で確認出来ます。その他にも解錠表示機能等で居住者の安全と安心を確保します。
【宅配ボックス&集合ポスト】個人の郵便物を受け取るためのメールボックス。不在時に届いた宅配便を本人の代わりに受け取り、24時間いつでも取り出せる宅配ボックス。2つの住宅設備を一体化させ、美しいデザインを実現させました。非接触キー対応なので、帰宅時に手荷物がある時も便利に利用できます。
【防犯カメラ】居住者の安全を守るため、監視カメラをエレベーター内、エントランス、自転車置き場、避難通路など様々な場所に設置しています。トラブルの発生を未然に抑止し、心理的な効果にもつながり、高い安全性を確保します。
【駐車場】車を利用されるご入居者のために2台分の駐車場を設けています☆他に身障者用の駐車スペース1台を設けています☆
【バイク置場】バイクを利用するご入居者のために5台分のバイク置き場を設けました。
【駐輪場】91台分の自転車置き場を設けました。ショッピングや近隣へのお出かけなどに便利です。 ※一部高さ制限があり。
GoogleMapを読み込んでいます。
35.546795 139.715844
アクサス蒲田南【満室】の物件動画
アクサス蒲田南【満室】の詳細
| 賃料 | *** | 管理費・共益費 | *** |
|---|---|---|---|
| 敷金/保証金 | *** / *** | 礼金/償却・敷引 | *** / *** |
| 更新料 | *** | フリーレント | *** |
| その他費用 | *** | ||
| 所在地 | 東京都大田区東六郷2丁目 | ||
| 交通 |
京浜急行電鉄本線「雑色」 徒歩8分 京浜急行電鉄本線「京急蒲田」 徒歩25分 京浜急行電鉄本線「六郷土手」 徒歩15分 |
||
| 間取り | 1K | 間取り内訳 |
洋室 7.9 畳 洋室 7.9 畳 |
| 専有面積 | 25.62m² | バルコニー面積 | |
| 築年月(築年数) | 2017年12月(築8年) | 方位 | 北東 |
| 建物構造 | RC(鉄筋コンクリート) | 所在階/階建 | ***/5階建 |
| 総戸数 | 86戸 | 駐車場 | 無 |
| 保険料 | *** | 契約期間 | *** |
| 引渡 | 2024年11月 | ||
| 現況(予定年月) | 賃貸中 | ||
| 管理 | 管理人/巡回、 | ||
| 設備・条件 | BSアンテナ、CSアンテナ、CATV、光ファイバー、オートロック、TVドアホン、防犯カメラ、ディンプルキー、ダブルロックキー、宅配ボックス、バイク置き場、駐輪場、エレベータ、AXAS(アクサス)シリーズ、2階以上、システムキッチン、バス・トイレ別、温水洗浄便座、浴室乾燥機、室内洗濯機置き場、フローリング、24時間換気システム、エアコン、バルコニー、分譲賃貸、礼金なし、敷金なし、ペット相談 | ||
| 備考 | 保証人代行:必須/エポス、クレディセゾン、新日本信用保証、ルームバンクインシュア、ジェイリース、家賃総額の30%~ | ||
| 周辺施設 |
大田区立東六郷小学校700m、大田区立南六郷中学校50m、コンビニ距離340m、スーパー距離500m、病院距離340m オーケー仲六郷店(距離:618m) セブンイレブン大田区東六郷3丁目店(距離:424m) セブンイレブン京急蒲田駅前店(距離:1,959m) |
||
| 物件番号 | 16839 | 取引態様 | 仲介 |
| 情報更新日 | *** | ||
| 次回更新予定日 | 情報更新日より15日以内 | ||


















COMMENTS FROM STAFFアクサス蒲田南【満室】の
担当者コメント
東京の1人暮らしはアセットナビへ!自社ブランドマンションをはじめ、賃貸物件を数多くご紹介可能です。こちらの物件は、当社グループ会社管理物件につき仲介手数料半額でご紹介中です。敷金礼金ゼロで初期費用が抑えられます。